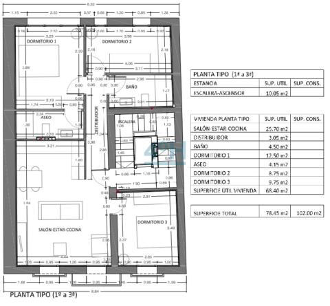
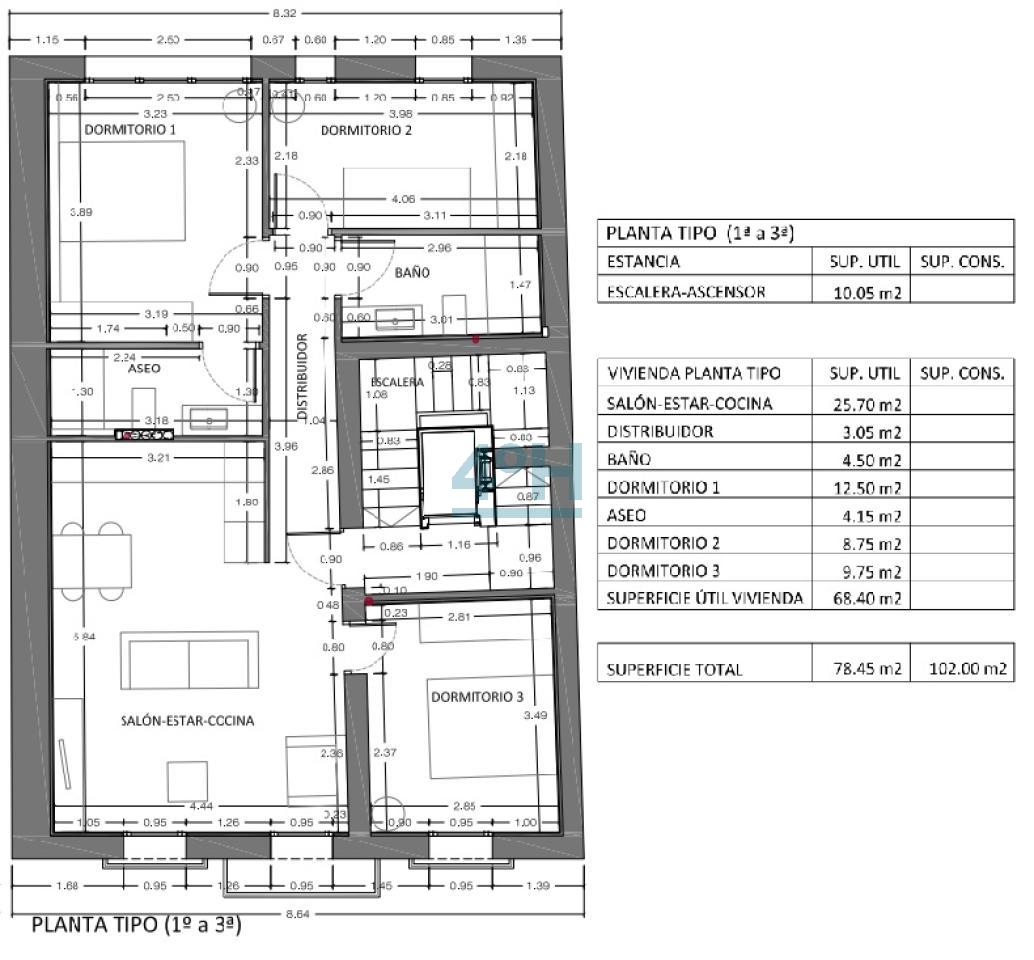
PLANTA PRIMERA EN EDIFICIO REHABILITADO -ZONA PARQUE BARBAÑA
Superficie útil 68,40 m2, distribuido en cocina americana con salón-comedor, dormitorio suite con baño, dos dormitorios secundario, baño y zona de lavandería.
La vivienda cuenta con armarios empotrados en todos los dormitorios. Tres balcones a fachada principal.
Calefacción y agua caliente de gas ciudad.
Ubicada a 5 minutos de la Plaza Mayor, rodeada de zonas verdes. Cuenta con todos los servicios en sus inmediaciones.
Puedes consultar planos y plazos de entrega.
En Cuarto Hache contamos con un asesor financiero que buscará un producto a tu medida. Sin estar vinculados a ninguna entidad bancaria, buscará la mejor opción para cada operación
¡Consúltanos!

